Elevador Automotivo Pórtico Eletromecânico EC 4.1 TON
Compatível com:
SUVEsportivosPickupsHatches e sedansVansPickups Grandes (RAM 3500)14000
O Elevador Emaster EC 4.1 Pórtico se destaca como a solução ideal para oficinas mecânicas que exigem um equipamento robusto, versátil, seguro e que oferece total liberdade de movimento sob o veículo, com capacidade de carga total de 4.100 kg, altura de elevação de até 1,89 metros e design pórtico que elimina a base inferior.
Este elevador garante a elevação eficiente e segura de diversos tipos de carros, vans, caminhonetes, SUVs e até mesmo veículos pesados da linha RAM 1500, 2500 e até a peso pesado RAM 3500.
Selecione seu opcional:
Informações Técnicas
| Capacidade de carga: | 4.100 Kg |
| Sistema de Lubrificação dos fusos: | Automática com óleo SAE 90 |
| Material do Fuso: | Fusos em aço liga com endurecimento superficial e extra polidos. |
| Sistema de acionamento: | Manual por alavanca. |
| Sistema de Segurança: | S.A.T. Sistema Anti-travamento com 4 funções. |
| Voltagem: | 220V / 380V |
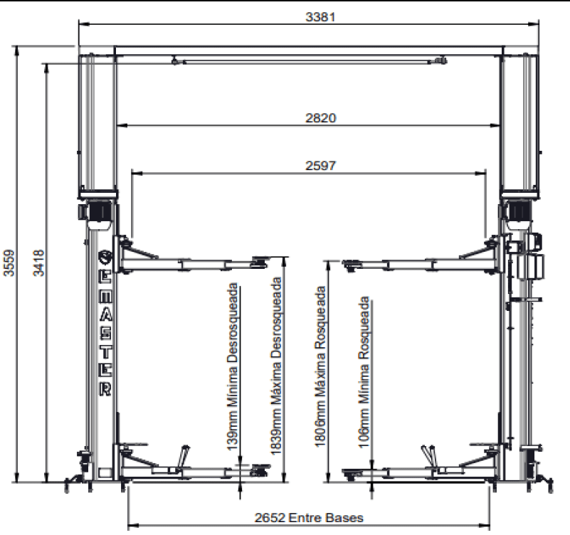
| Distância entre colunas/Largura Externa: | 2,82m / 3,58m |
| Altura total do Elevador/Altura sob o sensor: | 3,55m/3,41m |
| Acessórios de Série: | Sensor de teto, 12 chumbadores, 2 jogos de sapatas (1 redondo e outro quadrado para camionetes) |
Itens de Série
-
Trava Braços Automático
Os elevadores com o sistema TBA (Trava braços automático), possuem maior segurança de operação pois fazem de forma automática o bloqueio do movimento involuntário dos braços quando o veículo está suspenso.
– Sistema único no mercado nacional.
– Braços quando estão no nível do piso se movimentam livremente.
– Quando o veículo é suspenso, os quatro braços travam automaticamente não sendo necessário intervenção do mecânico.
-
Set-up Rápido
Braços STR – Setup rápido. Aumenta a produtividade do posto de trabalho, reduzindo o tempo de operação na troca dos apoios.
Ao contrário do sistema convencional onde os apoios das sapatas são rosqueados diretamente nas ponteiras dos braços, este sistema possui uma camisa com rosca que apenas se encaixa na ponteira.
Com este sistema, sempre que for necessário trocar os apoios de veículos leves para elevar uma camionete(ou vice-versa), não é necessário desrosquear os 4 apoios e rosquear os novos mas apenas retirá-los ganhando assim, um tempo considerável na produtividade do mecânico.
-
Braços Bi-Telescópicos
Esses braços oferecem maior flexibilidade do uso do elevador automotivo facilitando trabalhar tanto com veículos pequenos quanto de maior dimensão.
Com este sistema de braços, é possível ajustar da melhor forma a posição dos braços do seu elevador automotivo com os corretos pontos de apoio do veículo.
-
Disjuntor
Os elevadores Emaster, em sua maioria, saem de série com Disjuntor Motor. Saiba mais sobre as suas funções e benefícios:
Proteger o motor em caso de sobrecarga
A sobrecarga pode ter varias origens como; falta de fase, fiação sub-dimencionada, ligação errada, ou defeito mecânico que provoque um esforço extra, inclusive falta de lubrificação.Proteger o operador
O operador pode desligar a energia acionando o botão do disjuntor. Desta forma não corre o risco de alguém ligar o elevador enquanto ele realiza uma manutenção.Proteger o assistente técnico
Da mesma forma, o assistente técnico deve desligar a energia através do disjuntor e travar com um cadeado, toda vez que ele for fazer uma manutenção no equipamento, prevenindo acionamentos involuntário e riscos de acidentes.
Conteúdo em vídeo dos nossos produtos
-
Luis | Lusso Performance
‘Escolhemos o modelo Pórtico da Emaster pelo padrão de veículos que a gente trabalha, Porshe, Ferrari, Lamburguini que são veículos difíceis de colocar no elevador por serem muito baixos. Outro detalhe é que alguns veículos tem o motor na parte traseira, e ai tem a questão de peso deslocado e pra nós o Pórtico atendeu muito bem pois é um elevador muito seguro.”
-
Luciano e Leonardo | Allvento e Selecta
“A gente escolheu o elevador Pórtico da Emaster por causa do chão livre, esse tipo de elevador facilita a movimentação de cavaletes e carrinhos debaixo do elevador e evita que a gente tropece na base e ainda facilita muito a limpeza da oficina mecânica. Além disso, é um elevador imponente e com a customização da cor fez toda a diferença”
Perguntas Frequentes
-
O elevador pórtico deve ser instalado em piso de concreto com resistência mínima de 25 MPa e espessura de pelo menos 12 cm.
Pisos irregulares ou com fissuras podem comprometer a segurança do equipamento e anular a garantia, por isso é fundamental garantir um piso adequado antes da instalação.
-
Não. Nos elevadores pórtico eletromecânicos da Emaster, não é necessário reforço adicional no piso, desde que sejam seguidas as recomendações do manual de instruções.
Isso é possível graças ao projeto exclusivo das colunas, que possuem braços de estabilização e um maior número de pontos de ancoragem, garantindo distribuição de carga eficiente e estabilidade superior em relação a outros modelos do mercado.
-
Não. Os elevadores automotivos pórticos não foram projetados para uso externo ou em ambientes úmidos. A exposição à chuva ou a jatos de água pode causar curtos-circuitos, corrosão e até risco de choque elétrico, comprometendo a segurança e o funcionamento do equipamento.
-
Sim. Os elevadores pórticos da Emaster contam com o S.A.T. (Sistema de Ajuste de Trava), que nivela automaticamente os quatro braços do elevador. Após um procedimento simples de ajuste, o sistema garante que os braços trabalhem sempre no mesmo nível, aumentando a segurança e reduzindo o desgaste dos componentes.
Além do S.A.T., os elevadores pórticos possuem o sistema de trava automática dos braços, que impede a abertura involuntária durante a elevação, garantindo que os braços sejam travados automaticamente assim que o equipamento começa a elevar o veículo.
-
Sim. É possível levantar caminhonetes no elevador pórtico da Emaster, desde que sejam utilizados os apoios em “U” adequados para veículos com chassi tipo longarina.
Além disso, é fundamental conferir se a capacidade de carga do elevador é compatível com o peso em ordem de marcha do veículo, conforme especificado na ficha técnica do fabricante.
Para veículos maiores, como caminhonetes, recomenda-se seguir rigorosamente o posicionamento descrito no manual de instruções, garantindo uma elevação segura.
Importante: o veículo nunca deve estar carregado durante o uso do elevador.
-
Alguns cuidados são essenciais para garantir a segurança do equipamento. Os principais erros que podem comprometer o funcionamento do elevador pórtico incluem:
• Instalar o equipamento sem chumbadores.
• Utilizar o elevador em pisos irregulares.
• Elevar veículos mal posicionados ou desequilibrados.
• Operar com sapatas desgastadas.
• Não seguir o plano de manutenção preventiva recomendado pelo fabricante.
Evitar esses erros garante segurança, durabilidade e eficiência durante a operação do elevador.
-
Sim. A manutenção dos elevadores pórticos eletromecânicos é essencial e muito semelhante à dos elevadores de base.
Entre as principais ações recomendadas pelo manual de instruções estão:
• Troca do óleo das colunas a cada 2 anos.
• Engraxe dos rolamentos superiores a cada 3 meses.
• Reaperto ou substituição de correias e sapatas conforme o uso e desgaste.
Seguir essas recomendações garante maior vida útil ao equipamento.
-
Os modelos EC 3.0 e EC 4.1 utilizam dois motores de 3 kW (4 CV) cada, totalizando 6 kW de potência.
A tensão de operação é 220V trifásico e o disjuntor recomendado é de 40 A, garantindo uma instalação elétrica segura e adequada.
-
Os elevadores pórticos eletromecânicos da Emaster possuem garantia inicial de 1 ano de fábrica, podendo ser estendida até 5 anos conforme as regras do manual de instruções.
Para manter a cobertura estendida, é necessário:
• Realizar manutenções preventivas obrigatórias com um técnico autorizado Emaster.
• Registrar as revisões dentro dos prazos estabelecidos pelo fabricante.
Essa política garante suporte completo e segurança durante todo o período de cobertura.
-
Os elevadores pórticos Emaster já vêm equipados com:
• Apoios para monobloco e chassi, com sapatas de borracha.
• Jogo de chumbadores para fixação segura no piso.
Alguns modelos ainda incluem acessórios adicionais, como:
• Penduradores de rodas
• Bandejas porta-parafusos
• Suporte para descanso dos apoios
Esses itens ajudam a garantir segurança, organização e praticidade na oficina.

